Jump to content

Recommended Posts

Posted

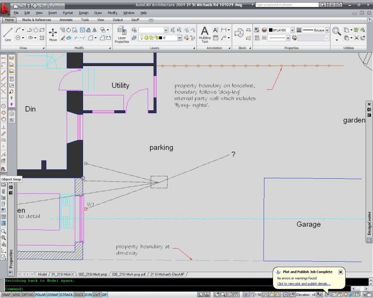
I know the embedded character problem in ACAD but can anyone explain why identically formatted text displays differently when output to pdf, please? As you can see the two notes starting 'property boundary...' are identically formatted / same style but show differently. The words 'Utility' and 'parking' likewise - but in another style.

 

Copy of textsizeacadscreen.jpg

 

MTEXT Layer: "TEXT"

Space: Model space

Handle = 410d9

Style = "Notes50hand"

Annotative: No

Location: X=1017184.25 Y=-146277.84 Z= 0.00

Width: 3279.57

Normal: X= 0.00 Y= 0.00 Z= 1.00

Rotation: 0

Text height: 150.00

Line spacing: Multiple (1.000000x = 250.00)

Attachment: TopLeft

Flow direction: ByStyle

Contents: property boundary on fenceline, boundary follows 'dog-leg'

internal party wall which includes 'flying- rights'.

 

MTEXT Layer: "TEXT"

Space: Model space

Handle = 3ecf5

Style = "Notes50hand"

Annotative: No

Location: X=1014916.77 Y=-152514.70 Z= 0.00

Width: 2629.85

Normal: X= 0.00 Y= 0.00 Z= 1.00

Rotation: 0

Text height: 150.00

Line spacing: Multiple (1.000000x = 250.00)

Attachment: TopLeft

Flow direction: ByStyle

Contents: property boundary at driveway

 

Copy of textaspdf.jpg

 

:oops:

Posted

The Width is different...

 

I keep my drawings without displaying Lineweights, perhaps you do the same? That would explain why the difference is not noticed until you plot it.

Posted

This is what happens when we take a good idea and try to morph it into our own use. A little history re: PDF files quoted here from the wiseGeek website:

 

"The portable document format is a form of file that allows for the creation of electronic documents using any type of word processor or print media software. As a bonus, the document can be shared with others, who are able to open and read the document, regardless of the word processing software they use. Here is some information about how PDF files are created, and why they are such an asset in a variety of applications.

 

PDF files were developed by Adobe Systems, and served as a way for people using multiple word processing systems to share finished documents. Because there are multiple word processing software packages in use that are not compatible with one another, the need for a common file format that everyone could open and read became the centerpiece of the Adobe® Acrobat® software."

 

As you can see nowhere is it mentioned that this file format was created for use with CAD programs nor does it mention the word "print". It's intended use was to address shortcomings with non-compatible word processing systems. Then we all (me too) complain about inconsistent printout of text, lineweight, etc. We created the problems by subjugating the purpose for which PDFs were supposed to be used.

 

OK. I'll stand down from my soapbox.

 

We now return you to your regularly scheduled program.

Posted

Does plot preview give you different results?

Posted

Nope, I have just made them identical width - still not the same in pdf. I used Changeprop.:(

 

I did not think 'width' was the problem but I am willing to try anything. I don't understand 'Normal' in listing has z=1 !! What's 'normal' here relating to text anyway? :?

Posted

 

OK. I'll stand down from my soapbox.

 

We now return you to your regularly scheduled program.

 

And a very good soap box and oration is was! I can't disagree with you, 'cos it seems sensible, but - it has worked for me before (or I have never noticed:oops:)!!!

 

Autode$k wouldn't provide a command that does not work properly - would they?:o:o

Posted
Does plot preview give you different results?

 

...my first screen shot was 'print preview'...

 

I haven't paper plotted it but might try, generally don't need to as use on-line planning application service...

Posted

That first shot doesn't look like a plot preview to me but plotting to paper would tell you if it is a PDF problem or something else.

Posted

...paper plot is fine... so PDF seems to be THE problem???

Posted

Try a different PDF plotter like CutePDF (free).

Posted
Try a different PDF plotter like CutePDF (free).

 

I have PDF995 free so tried that

 

And

 

it is ok!:D:D:D

 

so Mr Autode$k :x:x:x I am comin' round your place wiv the boys to sort you out tonight

 

-- what - 8000 miles away --- USA? Oh, well don't let me down again, 'right?

 

 

 

Sorry, pulled myself together now.o:)

Posted

Thanks everyone for your comments, pointers etc. - that's the value of Cadtutor forums.

Join the conversation

You can post now and register later. If you have an account, sign in now to post with your account.
Note: Your post will require moderator approval before it will be visible.

Guest
Unfortunately, your content contains terms that we do not allow. Please edit your content to remove the highlighted words below.
Reply to this topic...

×   Pasted as rich text.   Restore formatting

  Only 75 emoji are allowed.

×   Your link has been automatically embedded.   Display as a link instead

×   Your previous content has been restored.   Clear editor

×   You cannot paste images directly. Upload or insert images from URL.

×
×
  • Create New...