Jump to content

Calculating the area of a floorplan


Recommended Posts

Posted (edited)

Does anyone have any good tips when it comes to calculating the area of a floorplan?

You are supposed to start measuring from the outermost part of the walls, but when I do that I run into trouble with the porch on the bottom of the drawing and the room on top left.

The problems are basically that the porch is not supposed to be included in the total area, and in the room on the top I end up measuring a small area twice if I start my measuring from the outermost part of the walls.

This is not very well explained but I've drawn two red lines on the drawing to try to show where the problem areas are.

Edited by sheherezade
Posted

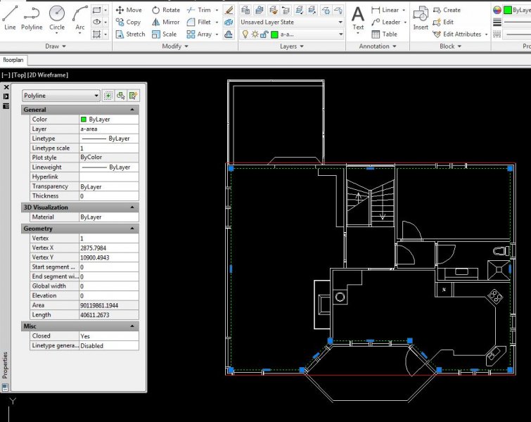
Draw a polyline around the perimeter of your house. Use the Area command with the Object option and select the polyline. Do not include the porch.

 

How does one enter the room at the top left hand corner? It appears you have a picture window that looks into the room. Is it supposed to be a deck?

Posted

AreaCalc.jpg

Command: Area

 

Specify first corner point or [Object/Add area/Subtract area] : O (for Object)

 

Select objects:

 

Area = 113310396.6932, Perimeter = 49264.4892

Posted

Good points from Remark. You can also just select the closed polyline and then look in the properties window and it will show the area. Now I have heard and read both ways of getting area. Either counting the exterior walls or just counting from the interior walls. At my work I count both as one being exterior gross and interior gross. I also count the room areas and the net or usable area.

Now to the bad news, you really need to learn about using layers in your drawings. Your drawing is not bad just that everything is on Layer 0.

 

Screenshot_1.jpg

Posted

Thank you guys. The room at the top left is suppsed to be a winter garden(I don't know if this is the correct english word for it? Sort of a "covered" porch?). (Which makes me wonder if it's meant to be included in the area of the floorplan...)

 

f700es: It's not my drawing as such. I'm taking a beginners course in Autocad, and have been given this drawing as part of a larger assignment. But you do make a very good point. It's easy to forget the different layers involved.

Posted

Ah, good to know about that not being your drawing. Best of luck on the assignment :)

Join the conversation

You can post now and register later. If you have an account, sign in now to post with your account.
Note: Your post will require moderator approval before it will be visible.

Guest
Unfortunately, your content contains terms that we do not allow. Please edit your content to remove the highlighted words below.
Reply to this topic...

×   Pasted as rich text.   Restore formatting

  Only 75 emoji are allowed.

×   Your link has been automatically embedded.   Display as a link instead

×   Your previous content has been restored.   Clear editor

×   You cannot paste images directly. Upload or insert images from URL.

×
×
  • Create New...