Jump to content

Simple pipework and fittings take of for AutoCAD MEP


Recommended Posts

Posted

Urgent:: We create relatively simple fie sprinkler pipework layouts using autoCAD 2017 and I am looking for a relatively simple method of extracting a take-off for the pipework, sprinkler heads and fittings. Also looking for an automatic way off numbering the heads somehow. We are willing to pay if someone can set this up on our system.

Posted

The simplest way of numbering the heads is to use a block which has a head number as inserted its +1 to last number.

 

The take off part can be simple or complex depending on what the objects are making that dwg.

 

You need to provide further details maybe a sample dwg  that people can look at.

 

There are a number of us here like me that would be happy to discuss a commercial arrangement, I am happy to provide contact details  as I am sure others will also.

 

 

 

Posted

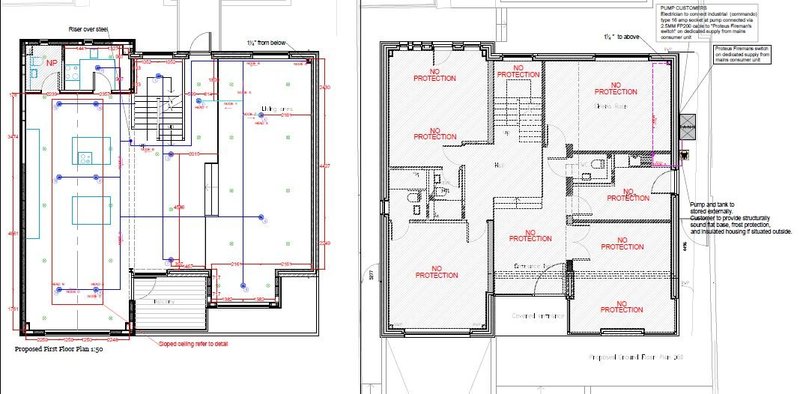
Hi, thanks for your response. I have attached 2 examples of drwings one is for a single house and another is a single floor of a couple of adjoining blocks of flats. The different coloured pipework corresponds to different pipe sizes. Let me know if you require further information - thanks

Capture P1782.JPG

Capture P1780.JPG

  • CADTutor changed the title to Simple pipework and fittings take of for AutoCAD MEP
Posted

What you want has been done before its very easy to get the total of all lines, plines arcs circle etc on a layer, I have suggested layer rather than colour as you posted an image not sure.  The question to this is display on screen, in a table or output to a file or all ? There are lots of examples out there.

 

As the sprinkler heads are a block again its easy to get totals just need some idea of block names and what attributes are attached to it eg number, sprinkle angle 360, 180. 

 

So post a dwg and I think you will get lots of replys from people who have already done this.

 

 

 

Posted

ok 1st up use wblock when posting dwg's, your dwg is 4Mb my wblock of the same is 135kb.  Just wblock what is required.

 

Looking a your dwg as the pipes are on 1 layer that is ok but me I would have had like RAD Sprinkler Pipework-50, RAD Sprinkler Pipework-38 so know the dia of pipe, a better way than just using colour to distinguish. Can be converted from colour to layer.

 

You can tie the label number to the sprinkler with a hidden attribute using a Field in the attribute it will then read the number and save in the block if needed, so could get stuff like sprinkler number,X,Y. You would do this at time of creation. www.Lee-mac.com, Lee has a good autonumber lisp that if you remove one it will renumber so I would be looking at using that.

 

You would make the head-number attribute  invisible so would not see twice. A more advanced method may be a dynamic block so it links the sprinkler with the number, has rotation and offset built in. Some one may be able to do that block for you a better 1st step as the 2 objects are one. I am not that good at dynamic blocks.

 

image.thumb.png.5080615fce6143eac1b3f4a3e3f65690.png

 

(defun c:foo ( / obj ss bname)
(setq obj (vlax-ename->vla-object (car (entsel "pick block object "))))
(setq bname (vla-get-name obj))
(setq ss (ssget "x" (list (cons 0 "INSERT")(cons 2 bname))))
(alert (strcat "You have " (rtos (sslength ss) 2 0) " \"" bname "\"'s"))
)
(C:foo)

So maybe a dwg improvement first to do with layer, then use a dynamic block.

 

Please advise which output

CSV ie excel

To screen like example

To a autocad table

or choose

Join the conversation

You can post now and register later. If you have an account, sign in now to post with your account.
Note: Your post will require moderator approval before it will be visible.

Guest
Unfortunately, your content contains terms that we do not allow. Please edit your content to remove the highlighted words below.
Reply to this topic...

×   Pasted as rich text.   Restore formatting

  Only 75 emoji are allowed.

×   Your link has been automatically embedded.   Display as a link instead

×   Your previous content has been restored.   Clear editor

×   You cannot paste images directly. Upload or insert images from URL.

×
×
  • Create New...