Jump to content

Recommended Posts

Posted

Hello everyone. I'm currently a 2nd year auto CADD student and I'm pretty knowledgeable of most things in the software. I work for a demolition company while in school and my boss is wanting to see if there is anyway to utilize CADD to edit/ make demolition plans in the software. I know almost nothing on how to use CADD for demolition. I don't know if there is any specific layers I need to use, I know nothing. Any help in this area would be greatly appreciated. 

Posted

Hi and welcome to the forum. To answer your question, yes Autocad can be used to create and edit demolition plans. I create  demo plans pretty much every day. I do freelance work for a Landscape Architect, so I'm always removing sections of existing roads, old buildings and other structures to make room for new developments.

 

How does your company create their plans currently? Do they draw them by hand?

 

Posted
1 hour ago, Cad64 said:

Hi and welcome to the forum. To answer your question, yes Autocad can be used to create and edit demolition plans. I create  demo plans pretty much every day. I do freelance work for a Landscape Architect, so I'm always removing sections of existing roads, old buildings and other structures to make room for new developments.

 

How does your company create their plans currently? Do they draw them by hand?

 

No they do not. Right now we are currently working on demolition in a factory that makes cars, and we have the original plans for the floor they are working on and are just basically wanting to be able to highlight where and what sections we are demoing and add key notes. I have the plan scanned in to my autocadd right now I just have no idea what to do from here. I didn't know if there were any basic layer or line properties i needed to be aware of when doing so. The plan also has no scale at all and that's really confusing me on what scale l  need to size it in autocadd. I dont know if any of this makes sense, but hopefully you can help me?

 

Posted
1 minute ago, Marissa Maggard said:

No they do not. Right now we are currently working on demolition in a factory that makes cars, and we have the original plans for the floor they are working on and are just basically wanting to be able to highlight where and what sections we are demoing and add key notes. I have the plan scanned in to my autocadd right now I just have no idea what to do from here. I didn't know if there were any basic layer or line properties i needed to be aware of when doing so. The plan also has no scale at all and that's really confusing me on what scale l  need to size it in autocadd. I dont know if any of this makes sense, but hopefully you can help me?

 

 

If you're working off a scanned image, that's not good because you don't have any editing capability. You may as well work in Photoshop if you're just adding highlighting and notes.

And if there's no scale on the scanned copy, that's another problem. Is there anything on the drawing, any dimensions or anything that you know is a standard size like a door or something?

 

As for layers or line properties, there are basic industry standards for these things that you could search for online, but I think most companies create their own standards. For my Demo plans, I use my clients standards. They name their Demo layers with the prefix DEM followed by the item being removed. For example, a building would be DEMBLDG, concrete would be DEMCONC, a fence would be DEMFENCE, etc.

Posted

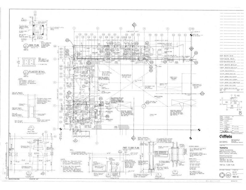
These are the current plans he has. One is just the original plan and the other is one he just edited himself with a different software. He's basically wanting me to be able to make it look more professional in CADD and then put it on a sheet with our company logo and all that. I'm not quite for sure what to do. 

400-A1 - PARTIAL FLOOR PLAN1024_1.jpg

400-A1_-_PARTIAL_FLOOR_PLAN.pdf

Posted

Well, you do have dimensions on the plan, so you can scale the pdf in model spaced, based on those. It won't be exact, but you should be able to get it pretty close.

 

The enlargements all say what scale they are, so you can create individual viewports in paper space for each of those.

 

For the plan, in paper space, create a viewport and set the viewport scale to something reasonable that fits your sheet size and reads well. You may want to put the details on a 2nd sheet so you have more room to put your notes and callouts on the plan.

Posted (edited)

The first step is establishing existing conditions and having them in CAD.

If you don't have them in CAD and have no way to acquire the existing CAD files, you have work ahead of you to asbuilt the existing structure and draw it from scratch.

 

It can take days to measure everything out, get door sizes, window sizes, lid heights, sketch it out, etc...  But it's the only way to draw it from scratch in CAD.

 

If all you have is a PDF, it is possible to import it to Autocad but only if it was created in Autocad.

In some cases it might be faster to insert the PDF at 100% scale and trace it out but it would be less accurate.

 

From there, you or your client need to determine what the final floor plan should be based on that existing layout.

 

At that point, the new construction layer will guide you in determining exactly what walls, doors and windows need to be demolished.

And you can denote those areas to be demolished on a demo plan with a red cross hatch (is my typical method).

 

With special notes and instructions given for specific windows, doors, etc..

 

It is 100% necessary to have the existing floor plan (CAD) and the new proposed floor plan (CAD) to accurately draw a demolition plan.

 

-ChriS

Edited by ammobake
Posted

A couple of extra comments the pdf is scanned and it has a skew but that can be fixed use "Align" to rotate and scale.

 

Ok the fun bit pdfattach put say 0,0 scale 1

When you look at the pdf there is "5 bays @ 64' = 320"  so a good dim the bigger is best to use.

Now I did DI and the length of the 5bays was 0.13 so 320/0.13 = 2461 so I scaled the pdf 2400

Using Line I picked the left arrow of the 320 long, made sure ortho was on dragged mouse to right typed 320 so end up with line 320 long and more important square.

Now "Align" pick pdf, make sure you snap endpoint, pick left point of line as pt1, pick to pt same point, pick the arrow head right side of 320, then the right end of the line , press enter, do you want to scale YES. Its at least now somewhere closer.

 

Like others I would trace over it, use Mline for walls etc.

 

 

 

 

Join the conversation

You can post now and register later. If you have an account, sign in now to post with your account.
Note: Your post will require moderator approval before it will be visible.

Guest
Unfortunately, your content contains terms that we do not allow. Please edit your content to remove the highlighted words below.
Reply to this topic...

×   Pasted as rich text.   Restore formatting

  Only 75 emoji are allowed.

×   Your link has been automatically embedded.   Display as a link instead

×   Your previous content has been restored.   Clear editor

×   You cannot paste images directly. Upload or insert images from URL.

×
×
  • Create New...