Jump to content

Rainwater Drainage System for a flat roof


Recommended Posts

Posted

Hi,

Recently I was rethinking about how I detail rainwater drainage of a flat roof and I found number of issues with it and I will like your input on it.  Usually there is a screed over the flat roof to protect the slab that has been cast after curing time. I have seen that screed be broken into endless pieces due to extreme heat from the sun at a height of 6m from the natural ground level.  Actually the contractor had the screen only about 20-25 mm. and that may be the reason for its turning into flakes and dust. Lets say the screen is reinforced with chicken wire and is 50 mm. including tiles.  How then do we drain the rain water.  This is a new project and I have also post the proposed rain water but I do not think this is even possible especially with laying of tiles (also wondering what type of tiles will resist the heat from direct exposition to sunlight, here at 6 m height). 

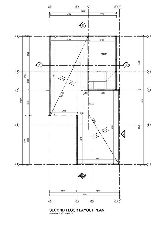
Proposed RainWater Drainage.jpg

Proposed RainWater Drainage.pdf FlatRoof RainWater Drainage Design.dwg

Posted (edited)

There are a handful of ways to get rainwater off of a flat roof.  One way is to pitch the roof using tapered polyisocyanurate board covered with EDPM (rubber roofing membrane).  The pitched roof is directed toward one or more scuppers leading to a gutter and downspout(s).

Edited by ReMark
Posted

Thanks. I will check this out. 

Join the conversation

You can post now and register later. If you have an account, sign in now to post with your account.
Note: Your post will require moderator approval before it will be visible.

Guest
Unfortunately, your content contains terms that we do not allow. Please edit your content to remove the highlighted words below.
Reply to this topic...

×   Pasted as rich text.   Restore formatting

  Only 75 emoji are allowed.

×   Your link has been automatically embedded.   Display as a link instead

×   Your previous content has been restored.   Clear editor

×   You cannot paste images directly. Upload or insert images from URL.

×
×
  • Create New...