Caesium Posted January 26, 2016 Posted January 26, 2016 Hi all, I'm new to this as I am undertaking a self build extension and wanted to do my own drawings. I'm pretty much done with the drawing but when I set up the layout to A3 my drawing appears very small and I'm not sure how to make it fill the space. Also I need to add a scale and title block for the planners, something simple if anyone can help. Thank you all in advance. I have attached my drawing for you perusal. Floorplan PROPOSED.dwg Quote
ReMark Posted January 26, 2016 Posted January 26, 2016 (edited) And what scale were you planning on using? I'd recommend 1:50 (scale factor 1/50xp). Were you planning on adding a border? I think this would be a good idea. Were you planning on creating a layout for each of the three plan views? Definitely do this. Were you planning on adding any dimensions? Edited January 26, 2016 by ReMark Quote
Caesium Posted January 26, 2016 Author Posted January 26, 2016 Scale of 1:100 as I think that's the accepted standard. I was going to attempt to and a border and scale information as well as a title box. All three drawings on the same A3 page is what I anticipated as I have a separate drawing for the existing building. Quote
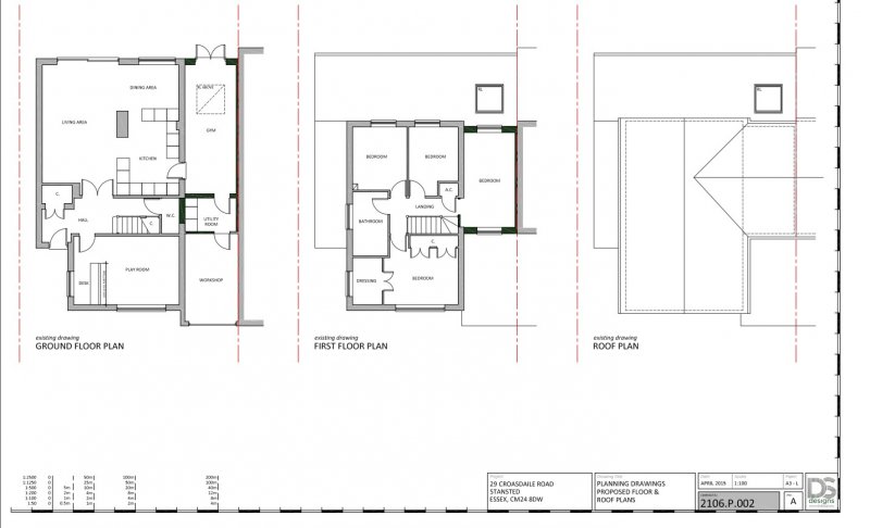
ReMark Posted January 26, 2016 Posted January 26, 2016 Your three plan views on one sheet at a scale of 1:100. I added a border (in blue). The pale magenta colored box is the viewport frame situated on its own layer (set to "no print") and display locked. How much AutoCAD experience do you have? Quote
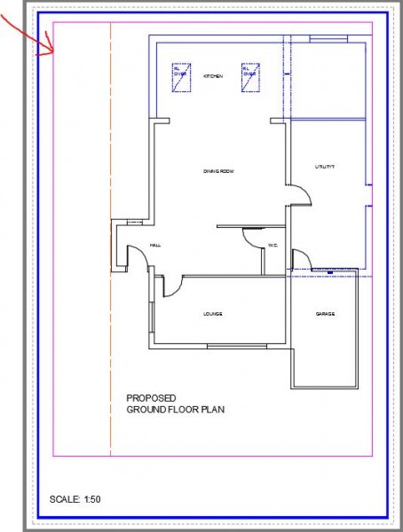
ReMark Posted January 26, 2016 Posted January 26, 2016 Another option is to put each plan view on its own sheet (one layout per view) like that shown below. Now you can use a scale of 1:50. Once again the pale magenta colored box is the viewport (no print - display locked). Quote
ReMark Posted January 26, 2016 Posted January 26, 2016 (edited) Where did you go? Well I have to go off-site for a couple of hours. If you need further help you'll find plenty of other knowledgeable forum members to assist you. I'll try to check in on this thread if I get a chance. It must be just after 7 p.m. your time. Good luck. I checked back as promised but you seem to have taken off for parts unknown. Guess I'll go work on something else. Bye. Edited January 26, 2016 by ReMark Quote
Caesium Posted January 27, 2016 Author Posted January 27, 2016 Hi There, thanks for your efforts, I had been at work all day and if I sat at the screen much longer I'll go crazy. As for my AutoCAD experience, I have none except for the drawing you see before you. The reason for putting all three on one page is not for construction use, only for submission to planning dept. Was the drawing okay other than plotting it correctly on the paperspace? Sorry if my terminology is not up to scratch, I am not trained in AutoCAD, I'm a technical engineer for a telecoms company, not an architect Quote
ReMark Posted January 27, 2016 Posted January 27, 2016 I reviewed your drawing strictly from the viewpoint of someone who works with AutoCAD on a daily basis. I can go back and take another look at the architectural aspect of it if you wish. From a CAD standpoint improvements could be made to the drawing but I take it that this is a "one off" and the likelihood of you doing any more drawings is small. Is that correct? Your planning department should have provided you with a "punch list" or sample drawing of what is required for submission. Didn't you receive anything from them? Some municipalities will post information online regarding what is required for a submission as well. Did you check? Quote
ReMark Posted January 27, 2016 Posted January 27, 2016 (edited) I have some questions regarding your drawing from an architectural point of view. Ground floor -Why are the proposed external walls thicker than the existing external walls? -Are you actually going to remove/replace the back wall of the garage? -What are the two objects labeled "RL Over"? Are they skylights? -The utility room is quite large. What exactly will be located in this room? First floor -Why just one very large window in the bedroom? -You should probably show where the toilet, shower/bathtub, sink/vanity are going to be situated in the en suite. -Exterior wall thickeness? -How does one go from the ground floor to the first floor? I don't see a stairway. Roof plan -Could you explain what is going on with the roof? I'm not sure I understand. -What does the existing roof on the garage look like? Is it flat? Aren't you required to provide at least two elevations (front and side) in your submission? Edited January 27, 2016 by ReMark roof not room Quote
Caesium Posted January 27, 2016 Author Posted January 27, 2016 I have some questions regarding your drawing from an architectural point of view.Ground floor -Why are the proposed external walls thicker than the existing external walls? Building code dictates that 100mm leaf with 100mm insulation then 100mm leaf hence the thickness. Existing house built before legislation introduced. -Are you actually going to remove/replace the back wall of the garage? There is a steel beam over the back of the garage to support the elevation above, Exisitng wall will just be plastered when it's inside. -What are the two objects labeled "RL Over"? Are they skylights? Yep -The utility room is quite large. What exactly will be located in this room? I am thinking about sub dividing this room and having a gym in the other half First floor -Why just one very large window in the bedroom? To match existing front window in main house, the side will overlook another property and probably will not be able to have any fenestration. -You should probably show where the toilet, shower/bathtub, sink/vanity are going to be situated in the en suite. Yes I can do this, thought about leaving that for now as the planners don't require it and it would be added to construction drawings. -Exterior wall thickeness? 300mm -How does one go from the ground floor to the first floor? I don't see a stairway. Still need to add this Roof plan -Could you explain what is going on with the roof? I'm not sure I understand. -What does the existing room on the garage look like? Is it flat? Yes Aren't you required to provide at least two elevations (front and side) in your submission? I have a few more things to add to the drawing, it just struck me that I might ask for advice before committing any more time to finishing the drawing if I couldn't print it due to a formatting error. if I'd made some catastrophic mistake in the scale and had to draw it all over again I'd be miffed so thought I'd ask the question before committing any more time, that's all. Here's some sketchups I thought I could use as elevations Quote
Caesium Posted January 27, 2016 Author Posted January 27, 2016 I have replied but it's awaiting admin permission to post? Quote
ReMark Posted January 27, 2016 Posted January 27, 2016 Not sure why that would be. Did you post banned images or use swear words? LoL Quote
Cad64 Posted January 27, 2016 Posted January 27, 2016 No, he posted his images through an external file host instead of uploading them to the forum. Post #12 is now approved. Information for new members: http://www.cadtutor.net/forum/showthread.php?56184-Information-for-new-members Quote
Caesium Posted January 27, 2016 Author Posted January 27, 2016 Wasn't sure we could upload, I saw attachments and they're different beasts. Not many forums allow embedded local images. Every day is a school day eh. Quote
ReMark Posted January 27, 2016 Posted January 27, 2016 Thanks for the images and for answering my questions. Quote
ReMark Posted January 27, 2016 Posted January 27, 2016 For the most part it does. What type of insulation is being used in the exterior walls? I'll be curious as to what the addition of the stairway will do to the overall interior design. Quote
Recommended Posts
Join the conversation
You can post now and register later. If you have an account, sign in now to post with your account.
Note: Your post will require moderator approval before it will be visible.