Jump to content

Recommended Posts

Posted

Hi,

 

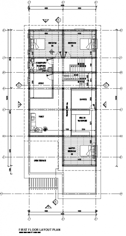
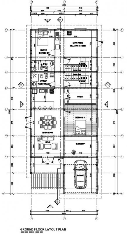
I would like to have your comments on this work-in-progress layout especially the granny's flat living area, the living room seat arrangement and the main en suite. 

 

I am also posting the project in pdf and cad for easy re-modelling or comments. 

 

Thanks in advance for your input. 

 

 

CEL 01a FF.png

CEL 01a GF.jpg

CEL 01a General Arrangemnt.dwg

Posted

Wasn't this posted some where else as well ?

 

Maybe a prior version and comments were made.

Posted

Looks good as a first impression, I'm not sure about having beds directly under the windows, it makes it difficult to open/close the windows and curtains or would you use blinds, I would personally have the beds against internal walls, possibly the same wall as the door (but thats just personal choice). A few more windows on the first floor (some areas have no natural light). And I'm not a fan of very narrow windows, plus in many countries there are regulations about the area of glass for area of floor in rooms.

Technically: in nit picking mode, there are no door frames and you have a few spots where doors are shown directly up against perpendicular walls (ensuite-bedroom5). There is an opening in the corner between the corner column and wall (WC - kitchen ground floor) which looks like an editing error rather than ventilation 😜 seeing as you have walls overlapping the columns in the hallway outside that WC. Two beams shown dotted by the garage entrance? and some lonely lines floating around the toilet - bidet blocks.

Otherwise it's better than a lot of drawings I see and work from. It would be nice to see some elevations.

Posted (edited)

The windows above the beds could be located above the headboard and be of the casement, sliding or awning style.  

 

I think the fact that there are no closets in many of the bedrooms would be a negative.  The huge walk-in closet on the first floor is overkill (unless you are married to my sister in which case it isn't big enough).

Edited by ReMark
Posted

Interesting layout for sure. So this "house" has a rental unit on the back side? I agree in that I am sure the windows in front of the beds are probably casement style, higher on the wall than a normal window. I am sure this is in Europe where house usually don't have closets and just use wardrobes, to each their own. I'd turn that main unit pantry room into a pantry/laundry room. Loved to see some elevations and a 3D model. Good start.

 

revisions.jpg

Join the conversation

You can post now and register later. If you have an account, sign in now to post with your account.
Note: Your post will require moderator approval before it will be visible.

Guest
Unfortunately, your content contains terms that we do not allow. Please edit your content to remove the highlighted words below.
Reply to this topic...

×   Pasted as rich text.   Restore formatting

  Only 75 emoji are allowed.

×   Your link has been automatically embedded.   Display as a link instead

×   Your previous content has been restored.   Clear editor

×   You cannot paste images directly. Upload or insert images from URL.

×
×
  • Create New...