Jump to content

HELP: Dimension text will change to a wrong measurment when dimension text is moved


Recommended Posts

Posted

I am facing this issue & i need to get to the bottom of this.

 

It is an existing drawing. When i do a dimension base on existing style, & when i adjust the dim text position, it will change to a weird number.

 

The existing dimension do not have this issue. Only the dimension I create.

 

Why is that & how do i prevent it?

 

Thanks

  • Replies 23
  • Created
  • Last Reply

Top Posters In This Topic

  • vernonlee

    9

  • Dana W

    8

  • samifox

    4

  • ReMark

    1

Top Posters In This Topic

Posted Images

Posted

Sound like u need to adjust the precision ftom 0.000 to 0 in the style

Posted
Sound like u need to adjust the precision ftom 0.000 to 0 in the style

 

how i create the dimension is check what dimension style the existing is & i select that style as current then create the dim.

 

The dimension text came out 300 (which is correct) but after i shift the dim text it becomes 45000 (which is wrong).

 

So this relates to precision? But i select current style! AM i doing something wrong?

 

 

edit

 

Both are having a precision of '0'

Posted

In case u shift only the text the value shouldnt alter in any way. I would run a recover in that drawing

Posted
In case u shift only the text the value shouldnt alter in any way. I would run a recover in that drawing

 

Really? I am thinking it is due to certain setting or system variable or the way I select the dimension style.

Posted

Are you dimensioning in model space or in a layout?

 

Attach a copy of the drawing to your next post and someone here will take a look at it.

Posted

Afaik No sys var does this. Can upload this drawing?

Posted
Are you dimensioning in model space or in a layout?

 

Attach a copy of the drawing to your next post and someone here will take a look at it.

 

Drawing in model. Dimension in paper.

 

I am out of office already. Will post the dwg when back in office after the weekend. But hopefully someone knows what the issue is before that.

 

Thanks

Posted

Does it happand with other styles as well?

Posted
Drawing in model. Dimension in paper.

 

I am out of office already. Will post the dwg when back in office after the weekend. But hopefully someone knows what the issue is before that.

 

Thanks

That happens with paperspace dimensions a lot. It is changing from model to paper units when modified. Either the dimensions are non-associative, or they are not quite snapped to a model object, or both.
Posted
That happens with paperspace dimensions a lot. It is changing from model to paper units when modified. Either the dimensions are non-associative, or they are not quite snapped to a model object, or both.

 

^^^ what Dana said.

 

Your vp scale is 1:150? (45000/300=150)

Posted

Hmmm cough cough. Is it fixed, or at least are you on track to fix it?

Posted
Does it happand with other styles as well?

Basically I only tried the main style which is set for this whole dwg

Posted
That happens with paperspace dimensions a lot. It is changing from model to paper units when modified. Either the dimensions are non-associative, or they are not quite snapped to a model object, or both.

 

That may be partly it. So need advise what should the right setting be & the right way to do the dimension such that the text do not change.

 

As mention, how I did the dimension is to select the style as current then do the dimension. So when I shift the text the value changes to 45000 I then use match properties to select the existing dimension then select mine dim to revert the value back to 300.

Posted
^^^ what Dana said.

 

Your vp scale is 1:150? (45000/300=150)

 

I believer so yes.

Posted
Hmmm cough cough. Is it fixed, or at least are you on track to fix it?

 

No clear direction as to what I am doing wrong as yet.

Posted

There is a clear direction of investigation already pointed out to at least make the occurrence less frequent. Part 1:

OPTIONS.jpg

Posted

Part 2: If you are not using associative dimensions, the rest of this doesn't apply, and it is up to your hand and eyeballs. Paperspace dimensions and modelspace objects Do Not work well unless the dimensions are associative.

 

Do you use osnap to set your dimensions? If so, do you have NODE selected as one of the snaps? If you do, then turn NODE off while setting dimensions. It will cause the dimensions to be associated to each other rather than your drawing geometry, which renders the associative function useless.

 

More to come, waffles are ready.

Posted

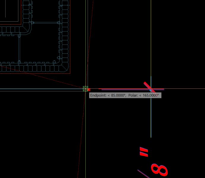
Part 3:

When you zoom way in on your dimension grips, do you see this? Even associative dimensions don't help without the node being right on the geometry. If your precision level is set larger than the gap between the dimension node and your geometry, the dimension will still show the correct dimension, until in the case of paperspace dimensions they are manipulated in some way.

snap.jpg

Join the conversation

You can post now and register later. If you have an account, sign in now to post with your account.
Note: Your post will require moderator approval before it will be visible.

Guest
Unfortunately, your content contains terms that we do not allow. Please edit your content to remove the highlighted words below.
Reply to this topic...

×   Pasted as rich text.   Restore formatting

  Only 75 emoji are allowed.

×   Your link has been automatically embedded.   Display as a link instead

×   Your previous content has been restored.   Clear editor

×   You cannot paste images directly. Upload or insert images from URL.


×
×
  • Create New...