Rave Posted July 17, 2020 Author Posted July 17, 2020 I am confused by this sentence from the instructions in pdf: "Indicate on it the area for Detail D1 which will show the connection of the beams to the girder at four times the actual size." "indicate the area for Detail F1, which will show the connection of the beam to the girder at four times the actual size." How do I indicate the area? How do I calculate it? (i know its length by width, but which length and width? the whole area of detail D and detail F? so should i be selecting the whole detail and then from the pop up information in autocad, choose the x and y coordinate and multiply? Quote
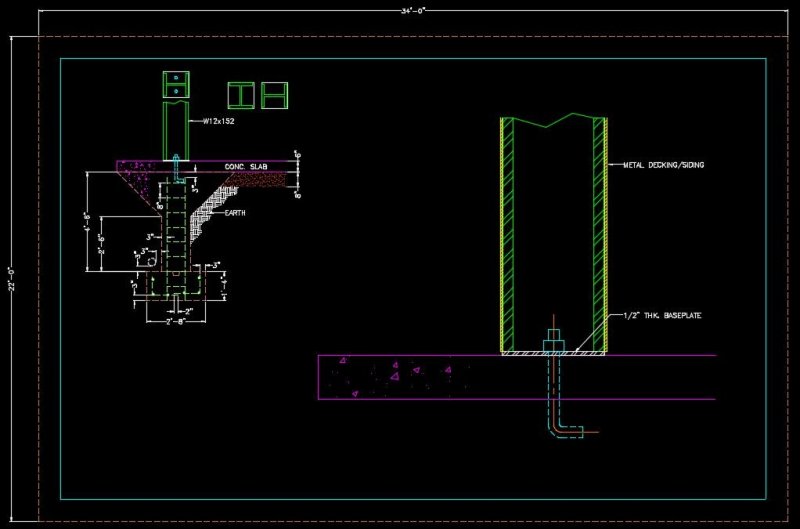
ReMark Posted July 17, 2020 Posted July 17, 2020 Girders span beams. In detail F1 it is the < ] > shape (color: yellow) and secured to the beam with bolts. Quote
ReMark Posted July 17, 2020 Posted July 17, 2020 (edited) The area you are being asked to enlarge is the one within the circle(s) on the previous drawing (Plate 3). They want you to reproduce that area on Plate 4 at "4 times" the size. Ex. - if the area in drawing "A" was originally 1x1 units then an enlargement of the same area in drawing "B" would be 4x4 units. Edited July 17, 2020 by ReMark Quote
Rave Posted July 21, 2020 Author Posted July 21, 2020 I have a question on plate 7. The detail for " Distance from center of anchor bolt to end of anchor bolt" and "Distance from center of anchor bolt to edge of concrete". Which is the center of anchor bolt? I tried referring to a previous thread here. But i didnt see it there. Quote
Rave Posted July 23, 2020 Author Posted July 23, 2020 Thanks for all the help with this extremely tough project Remark. I got a 100%. Now taking a different order of studying the course and instead of civil,iam doing electrical and electronics drafting section in this. Fingers crossed this goes well than the structural drafting section in terms of understanding the concepts and project. Quote
ReMark Posted July 23, 2020 Posted July 23, 2020 (edited) Thank you for your kind words. Continue to keep up the good work. Edited July 23, 2020 by ReMark Quote
Yirlesa Posted November 18, 2020 Posted November 18, 2020 On 7/11/2020 at 11:50 AM, ReMark said: Re: Plate 3 - Cap. Here is a close up view of what the cap should look like. Note the "drip edge" on the exterior side of the building (it's angled). hello Remark I'm now working on this part ,, doing the details. my question is where supposed goes the weld of the steel sheet? and how i should represent it also , maybe because I'm no into architecture world its little bit hard for me to understand some terminology. and i have some idea of what flashing is , but im no sure how to represent it in the detail, also I'm very lost about doing the drain detail , the instructions shows like an example but no sure if i should copy if , i was checking online and i was thinking that maybe i could use as an example any drain detail , according with the floor of this project (i have been asking to my instructor in PF and no answer but the last time i had questions they were no helpful ,, thats why i keep coming back to this webside ) thanks Quote
Yirlesa Posted November 18, 2020 Posted November 18, 2020 also what are the dimension of the bolts and angle for the connection with beam and columns,, i cant find that info in my instructions and instructor in PF ask to let y name and e mail they will answer my questions later on Quote
Yirlesa Posted November 18, 2020 Posted November 18, 2020 I'm sorry i found the angle and bolt info Quote
ReMark Posted November 18, 2020 Posted November 18, 2020 Let's start with the ROOF drain. The example shown above can be duplicated (just the basic overall shape) and located as per the P-F instructions. Note: the drain does not fall in the middle of the roof. I don't recall P-F instructing students to show welds on the sheet steel. I'm assuming you are talking about the corrugated steel sheeting (also called cladding) used on the exterior/interior of the building. Flashing refers to thin pieces of impervious material (ex. - copper or sheet metal) installed to prevent water from entering into a structure or as part of a barrier system. Refer to the Plate 3 - Cap detail you reproduced above. In that detail the cap, or flashing, is colored red. It would go along the top of the parapet wall of the structure and prevent water from entering the building. The detail happens to show the flashing at a column. Quote
MichaelZ Posted December 28, 2022 Posted December 28, 2022 Hello, I am working on the same project from ICS Canada, also associated with Penn Foster. The Structural Project I'm doing is similar to the project posted here however the instructions are slightly different. I am currently on sheet 2 and stucked on the rebar part. "The rebar in the bottom and along the sides of the footings is #4 rebar (1⁄2″ diameter) at 8″ OC both ways. The rebar is located 3.5″ from the face of the footing on each edge. The rebar near the bottom of the footing extends up the sides of the footing by 6″. The callout for the rebar is #4 ∅ @ 8″ O.C. BOTH WAYS." The part for the rebar near the bottom, does that mean its also located 3.5" from the base and than goes upwards 6", or does the rebar start 6" from the bottom? What does 8″ OC both ways mean as well? I have attached the screenshot where I believe where the rebar is located and drew it as a 1/2" diameter hole based on my understanding of the instructions. Special Thanks for anyone's help Structural Drafting With AutoCad Project.zip Quote
ReMark Posted December 28, 2022 Posted December 28, 2022 MichaelZ: If you look back through the posts in this thread you will see an example of what the rebar in the footing should look like. BTW... 8" O.C. means eight inches on center (or center-to-center). I would locate the rebar a minimum of 3 inches from the bottom. Quote
MichaelZ Posted December 28, 2022 Posted December 28, 2022 Hello @ReMark Thanks for your response. Based on the footing diagram you provided earlier in the thread and based on the instructions I have been provided, I drew the bottom rebar 3.5" from the bottom, and the hook of the rebar up 6". I attached an image of how I drawn it, is this drawn correct based on my instructions? (which is slightly modified from the instructions posted earlier in this thread) Quote
ReMark Posted December 28, 2022 Posted December 28, 2022 (edited) Actually, it is incorrect. Please refer to page 3 of this thread. Scroll all the way down to the bottom of the page. Now, look at the last post (from me) which would be the second one up from the bottom. That is how the rebar should be drawn. Rebar running north/south should be drawn as a single line. Rebar running east/west should be drawn as a circle. Remember, the rebar is running in both directions, and you are slicing through it with this detail. Edited December 28, 2022 by ReMark Quote
MichaelZ Posted December 28, 2022 Posted December 28, 2022 Hello @ReMarkI have changed the double lines to single lines as per your diagram on page 3. Also started with drawing the horizontal and vertical rebar for the pier too. I'm little confused what else is incorrect as I do have the circle spaced 8" apart and the U shape line 3.5" away from the edge now changed to single line. I know I am missing the hook for the vertical rebar at the moment, as I'm still trying to figure out what "the overlap detail at the bottom of the rebar is 2" long" means as per my instructions given to me. Let me know where else is wrong with my rebar drawing. Thanks, Michael Quote
ReMark Posted December 29, 2022 Posted December 29, 2022 If you draw the rebar as it is shown in the topmost image of the two you posted above then it will be correct. Additionally, the rebar should be radiused, where it bends, and not a 90-degree angle. Quote
MichaelZ Posted December 30, 2022 Posted December 30, 2022 Hello @ReMarkwhat would you recommend for the radius of the bend? Quote
BIGAL Posted December 30, 2022 Posted December 30, 2022 There is a standard for the minimum radius of a reo bar. That is your home work now to find what it is. 1 Quote
Recommended Posts
Join the conversation
You can post now and register later. If you have an account, sign in now to post with your account.
Note: Your post will require moderator approval before it will be visible.